Mittwoch5. November 2025

Demaart De Maart

Esch„Etwas Wertvolles“: Renaturierung der Dipbech schreitet voran

Esch / „Etwas Wertvolles“: Renaturierung der Dipbech schreitet voran
Im unteren Teil in Richtung Ehleringer Straße sind bereits zwischen 100 und 200 Meter des Bachverlaufs renaturiert Foto: Editpress/Julien Garroy

Jetzt weiterlesen!

Für 0,99 € können Sie diesen Artikel erwerben:

Oder schließen Sie ein Abo ab:

ZU DEN ABOS

Sie sind bereits Kunde?

Anfang Januar haben die Arbeiten zur Renaturierung der Dipbech in Esch begonnen. Hier entsteht in den nächsten Monaten ein Biotop am Rande der Nonnewisen. Das 2,4-Millionen-Euro-Projekt schreitet zügig voran. Ortsbesuch auf einer alles andere als gewöhnlichen „Baustelle“.

Vom Spazier- und Fahrradweg aus ist es deutlich zu sehen: Die Mitte Januar begonnenen Arbeiten zur Renaturierung der Dipbech schreiten voran. Die ersten beiden Mäander sind ungefähr auf Höhe des Pavillons zur Seite der Ehleringer Straße zu erkennen. Mäander sind Flussschlingen. Der zuvor in seinem Betonbett schnurstracks in Richtung Alzette fließende Bach soll sich in Zukunft durch das neue Biotop am Rande der Nonnewisen schlängeln. 

Klares Wasser, erste Algen: die Dipbech
Klares Wasser, erste Algen: die Dipbech Foto: Editpress/Julien Garroy

Nachdem zunächst die Altlasten wie ein Häuschen, ein kleines Schwimmbad und diverse Fundamente längst verschwundener Bauwerke abgerissen wurden, ist es nun hauptsächlich Erde, die bewegt wird. Und das nicht zu knapp. 11.000 m2 sollen im Laufe der Arbeiten abtransportiert werden. Noch geht das nicht, denn nach dem vielen Regen der letzten Zeit ist die Erde zu schwer und muss zunächst etwas trocknen. Daher sieht es am Rande der Dipbech momentan aus wie in einer Schlammwüste. 

Kein Wunder, dass Xavier Moreno, Pol Zimmermann, Mirko Volani und Flavio Morabito Gummistiefel anhaben. Man versinkt momentan bis zu 20 cm im Schlamm. Volani und Morabito arbeiten für das Wasserwirtschaftsamt (AGE), Moreno ist vom Ingenieurbüro INCA und leitet die „Baustelle“, während Förster Pol Zimmermann die Arbeiten für die Stadt Esch koordiniert. „Wir sind dem Planning gut zwei Wochen voraus, kommen sehr gut voran“, sagt Xavier Moreno, „allerdings kann sich das auch schnell ändern.“     

Zwei Phasen abgeschlossen

Die Arbeiten werden in Phasen durchgeführt, wobei eine Phase rund 100 m Flussverlauf entspricht. Die Dipbech wird dann aus ihrem Betonbett befreit und umgeleitet. Aus dem rund 500 m schnurgeraden Bach wird mit der Zeit ein 785 m langer Verlauf entstehen, der sich in Richtung Alzette schlängelt. Er wird außerdem mit den Rückhaltebecken in den Nonnewisen verbunden. Rund um den Fluss wird ein Biotop geschaffen. Verschiedene nicht heimische Bäume – insbesondere Nadelbäume – wurden bereits entfernt. An ihrer Stelle werden heimische Bäume zur Stabilisierung der Ufer gepflanzt. Büsche sollen den Vögeln und Kleintieren Schutz bieten. Zudem wird ein Obstgarten angelegt. Das gesamte Areal zwischen den Häusern der Nonnewisen und dem Spazier- und Fahrradweg wird neu gestaltet, u.a. mit diversen Sportanlagen, einem Spielplatz, einer Hundewiese und neuen Pfaden. Ein kleines Naherholungsgebiet für den Escher Norden. Vier Passerellen werden den Übergang möglich machen.  „Wir schaffen hier etwas Wertvolles“, sagt Pol Zimmermann.

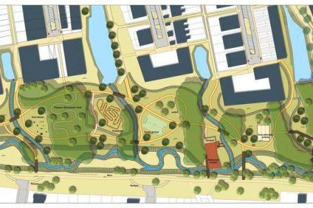
So soll es in rund einem Jahr rund um die Dipbech aussehen 
So soll es in rund einem Jahr rund um die Dipbech aussehen  Grafik: Stadt Esch

Die ersten beiden Phasen der Renaturierung sind abgeschlossen. Der Bach schlängelt sich durch die Gegend, die Wassertiefe pendelt zwischen 20 cm und einem Meter. „Wir variieren, um eine Dynamik zu schaffen“, erklärt Flavio Morabito vom Wasserwirtschaftsamt. Die tiefen Stellen brauche man für die Fische. Es werden Wurzeln gesetzt, Steine ins Bachbett gelegt. Das Wasser ist hier glasklar, während es ein wenig weiter durch die vielen Erdbewegungen der Arbeiten ziemlich braun ist. Um das Schlammwasser zu filtern, benutzt man Strohballen. „Die Fische gehen von selbst. Ehe wir einen Arm des alten Baches schließen, suchen wir das Wasser mit einem Fangnetz ab. So können wir sichergehen, dass kein Fisch eingeschlossen wird“, erklärt Pol Zimmermann. Viele Rotfedern seien im Bach, zum Teil bis zu 25 cm lang. 

Sie kümmern sich um die Renaturierung: (v.l.) Mirko Volani, Flavio Morabito (beide Wasserwirtschaftsamt), Pol Zimmermann (Gemeinde) und Xavier Moreno (Ingenieurbüro INCA)
Sie kümmern sich um die Renaturierung: (v.l.) Mirko Volani, Flavio Morabito (beide Wasserwirtschaftsamt), Pol Zimmermann (Gemeinde) und Xavier Moreno (Ingenieurbüro INCA) Foto: Editpress/Julien Garroy

Sieben bis acht Monate

Sieben bis acht Monate sind für die Renaturierung der Dipbech bis zum „Pavillon Schlassgoart“ vorgesehen.  2017/2018 war dort bereits der erste Teil des Baches aus seinem Betonbett befreit worden. Weitere 2.000 m2 Beton werden nun entfernt, der alte Verlauf des Baches mit dem ausgehobenen Boden von nebenan aufgefüllt. „Für das Anlegen des Parks sind weitere sieben bis acht Monate vorgesehen“, sagt Zimmermann. Die Kosten für die Renaturierung samt der Umgestaltung des gesamten Areals belaufen sich auf rund 2,4 Millionen Euro. Der Staat wird sich über das Wasserwirtschaftsamt mit einer Million beteiligen. Die Dipbech entspringt in Belval und mündet auf Höhe des Cactus-Supermarktes in die Alzette. Dort beginnt auch das neue Naturreservat Pudel respektive Brill. Die Alzette soll zudem im Rahmen der Erschließung der Industriebrache „Metzeschmelz“ in Richtung Esch renaturiert werden. 

„Man sieht, wie schnell sich die Natur etwas zurücknimmt“, schließt Pol Zimmermann und stiefelt davon. In der Tat haben sich im neuen Verlauf der Dipbech bereits kleine Algen gebildet. Die Wasserqualität wird sich außerhalb des Betonbettes verbessern: Dafür sorgen die neue Dynamik des Baches mitsamt seiner Mäander.